THOUGHTBARN_BOX PROTOTYPES_
Tuesday, December 02, 2008
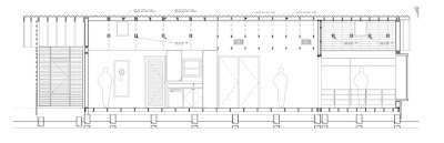
Some protoypical box situations I have been exploring. Hopefully you will see these soon. I am in the process of finalizing some fabrication strategies.. .fun.
Labels: FOLD FURNITURE, LARGE SCALE ART INSTALLATIONS., STEEL BOX PROTOTYPES






